Omschrijving
Aan de rand van het dorp Sint Jansteen staat deze ruime woning met garage en aanbouw. De woning staat op een perceel van totaal 706 m² en de tuin ligt op het Zuiden. Er is een slaapkamer en badkamer op de begane grond. Boven zijn nog 3 extra slaapkamers.
Deze woning is gasloos, Verwarming en koeling middels warmtepomp. Met 18 zonnepanelen.
Energielabel A+
Begane grond
U komt binnen in de hal met nieuwe meterkast, trapkast en de trap naar de verdieping.
De lichte woonkamer (35 m²) is voorzien van grote ramen en een mooie, donkere tegelvloer. Vanuit de woonkamer komt u in de woonkeuken met kookeiland en inbouwapparatuur, zoals een inductiekookplaat, oven, magnetron, wasemkap, vaatwasser en koelkast. Er is veel kastruimte.
Aan de achterzijde van de keuken zijn dubbele tuindeuren en er is een pelletkachel geplaatst.
Achter de woonkamer is een hal met vaste kast en toegang tot een het toilet, de badkamer met inloopdouche, ligbad en wastafelmeubel.
Ook is vanuit deze hal een slaapkamer (20m2) te bereiken. Hier zijn dubbele tuindeuren naar de tuin.
Aan de achterzijde van de woning is verder nog een aparte kamer/bijkeuken, waar ook de warmtepomp en -boiler zijn geplaatst (2023).
Vanuit deze bijkeuken is er ook een vlizotrap naar een zolderruimte met onder andere de mechanische ventilatie.
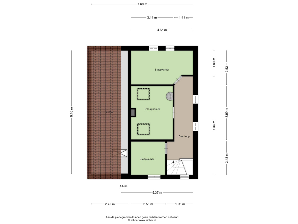
Eerste verdieping
De overloop geeft toegang tot 3 slaapkamers (6,4 m², 11 m² en 12,5 m²).
De ruimste slaapkamer heeft 2 dakramen en een eigen wastafel.
Tuin
De gehele tuin is omheind en ligt op het Zuiden. Achter de woning is een overkapping geplaatst (16m2), er is een houten tuinhuis (8m2) en een stenen garage (15m2) naast de woning.
Bijzonderheden
De woning heeft een Energielabel A+ en is onder andere voorzien van kunststof kozijnen met triple glas, dak- en muurisolatie.
Er zijn 18 zonnepanelen geplaatst in 2023.
Maak een afspraak voor bezichtiging!
