Omschrijving
Instapklare, karakteristieke vrijstaande woning met garage en dubbele oprit op gewilde locatie, vlakbij het centrum. Nette halfopen keuken en bijkeuken. Op de verdieping zijn 3 slaapkamers en een fraaie badkamer.
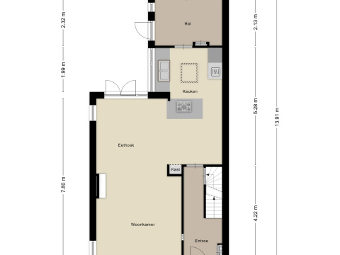
Begane grond
Hal met vernieuwde meterkast, toegang tot de kelder (8m2, hoogte 1,74m) en trap naar de verdieping, authentieke tegelvloer. Vanuit de hal is een doorkijk naar de woonkamer gemaakt.
L-vorm woonkamer met aan de achterzijde openslaande tuindeuren naar de tuin.
Halfopen keuken met kookeiland en inbouwapparatuur, zoals een 5-pits gaskookplaat met wasemkap, oven (2024), vaatwasser (2020), koelkast (2024) en grote spoelbak.
Vanuit de keuken is er een open verbinding met de woonkamer en de tuin.
Achter de keuken is een bijkeuken met veel opslag- en kast ruimte en deur naar de tuin, toilet en een wasruimte met aansluitingen voor wasmachine en droger en een spoelbak met warm en koud water. Hierachter bevindt zich een buitenberging, waar de cv-ketel is geplaatst (Remeha Calenta HR 2011).
Eerste verdieping
De overloop (met inbouwkast) geeft toegang tot 2 nette slaapkamers aan de voorzijde en een ruimere slaapkamer met op maat gemaakte vaste kasten aan de achterzijde. Rondom zijn rolluiken geplaatst. In de badkamer zijn een inloopdouche, 2 wastafels en een tweede toilet.
Op de overloop is er een luik met vlizotrap naar de bergzolder.
Tweede verdieping
De zolder is bereikbaar met een vlizotrap. Hier is extra bergruimte.
Tuin
De zonnige tuin is 30 meter diep en 13 meter breed. De vrijstaande garage met dubbele oprit is voorzien van nieuwe elektra en led-verlichting. Rondom is omheining geplaatst. Er zijn moestuinbakken, een kas en bloementuin aangelegd.
Bijzonderheden
De woning is volledig voorzien van hardhouten kozijnen met op de begane grond HR++ glas (2025) en boven dubbel glas. Rondom grotendeels voorzien van deels elektrisch bedienbare rolluiken. Het plafond van de verdieping en het platdak is geïsoleerd.
Prima locatie, vlakbij het centrum.
Oplevering in overleg.
Kom kijken en overtuig uzelf tijdens een bezichtiging!
