Omschrijving
Onder architectuur gebouwde, goed onderhouden en geïsoleerde woning met aangebouwde tuinkamer en aanpandige garage met zolder. Ruime woonkeuken, slaapkamer en badkamer op de begane grond en 3 slaapkamers op de verdieping. Ruime tuin met veel privacy. Energielabel B.
Begane grond
Ruime hal, toilet, meterkast (2018), kelderkast, trap naar de eerste verdieping en aan de voorzijde de keuken (13m2) en ruime woonkamer (34m2).
De keuken is vernieuwd in 2018 en voorzien van Siemens inbouwapparatuur, zoals een Quooker, inductiekookplaat, wasemkap, oven, koelkast en vaatwasser.
Aan de achterzijde is de bijkeuken (12m2) met aansluitingen voor wasmachine en droger, de verwarmingsketel (Brink 2018) en de boiler. Hier is ook de doorgang naar de garage (26m2) en naar de tuinkamer/serre (27m2). De badkamer bevindt zich aan de achterzijde van de woning en is voorzien van een ligbad, dubbel wastafelmeubel, douchecabine en toilet. Naast de badkamer is de slaapkamer (16.5m2)
Rondom zijn rolluiken aanwezig.
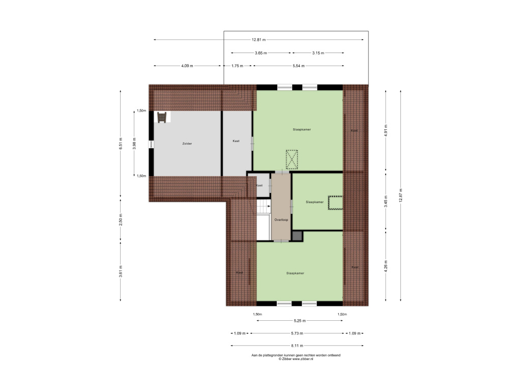
Eerste verdieping
Op de eerste verdieping is een ruime overloop met toegang tot 3 slaapkamers (10, 22 en 27m2) en een bergkast.
Er zijn rolluiken geplaatst in de grootste slaapkamers.
Tweede verdieping
Vanuit de achterste slaapkamer is er een vlizotrap naar de bergzolder (Nokhoogte 1,5m)
Tuin
Grote, diepe achtertuin (44x17m) op het Zuiden met houten tuinhuis (9m2) en aangebouwde tuinkamer achter de woning.
Ruime voortuin met 14x6m oprit voor meerdere auto’s.
Er is een achterom langs de garage.
Bijzonderheden
Rondom aluminium kozijnen met HR glas en rolluiken.
Volledig geïsoleerd, Energielabel B.
Nette tegelvloer op de begane grond, laminaatvloer op verdieping.
Slaapkamer en badkamer op de begane grond en nog 3 slaapkamers op de eerste verdieping.
Fraaie tuin met veel privacy.
Bel ons voor een bezichtiging!
